无障碍
适老模式
当前位置:
事前公开
> > 内容阅读
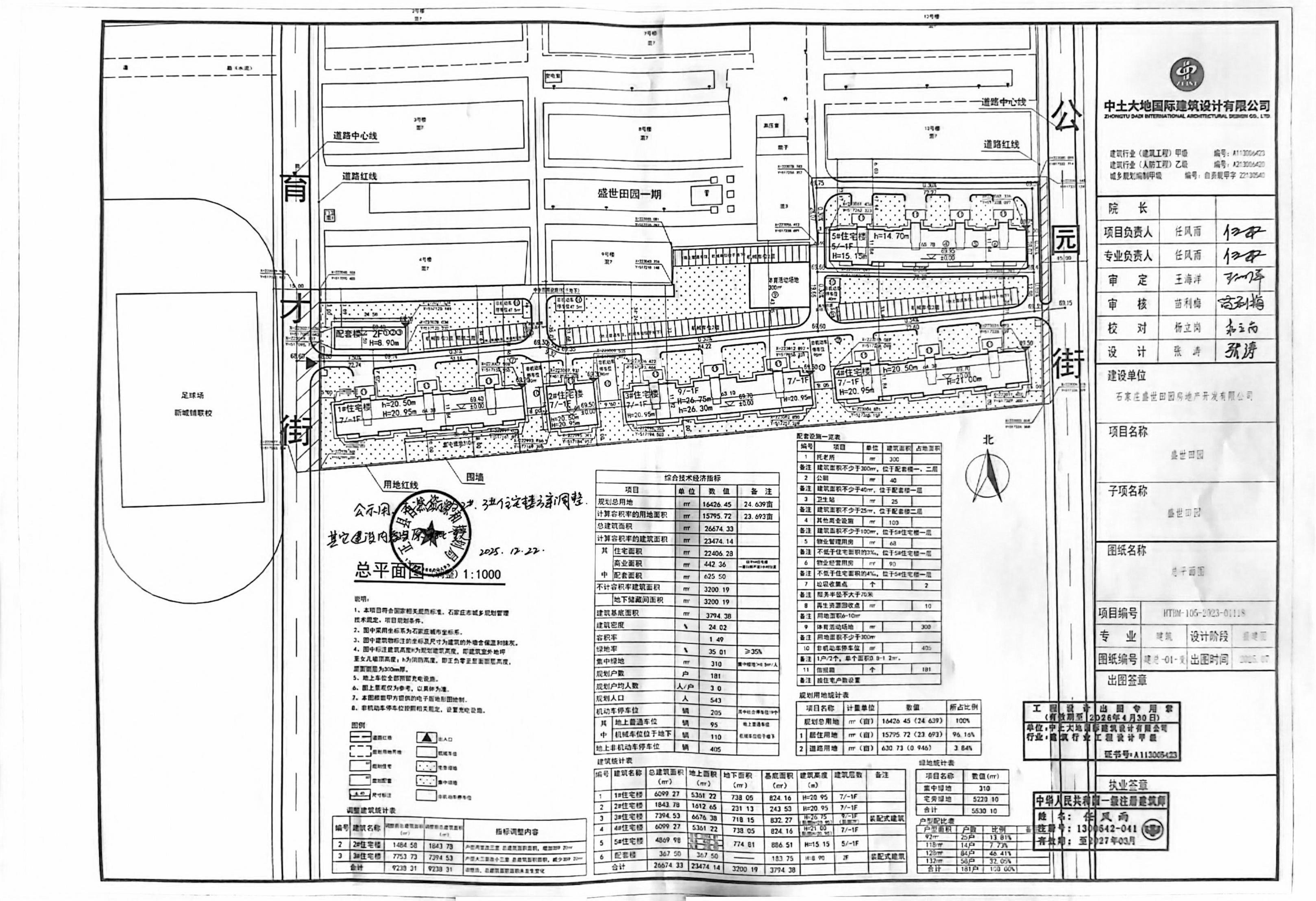
正定县自然资源和规划局关于盛世田园项目规划设计方案调整批前公示的通告
发布时间:2025-12-23
来源:正定县自然资源和规划局
发文字号:
【字体:
大
中
小
】
打印
正定县自然资源和规划局关于盛世田园项目规划设计方案调整批前公示的通告